MENU
MENU
Over ons
3D laserscannen
BIM modelleren
Bouwkundig tekenwerk
Werkorganisatie
Projecten
Contact
WhatsApp
Mail
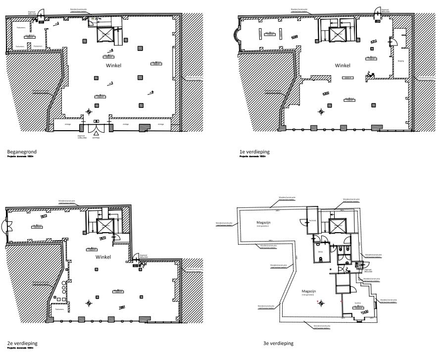
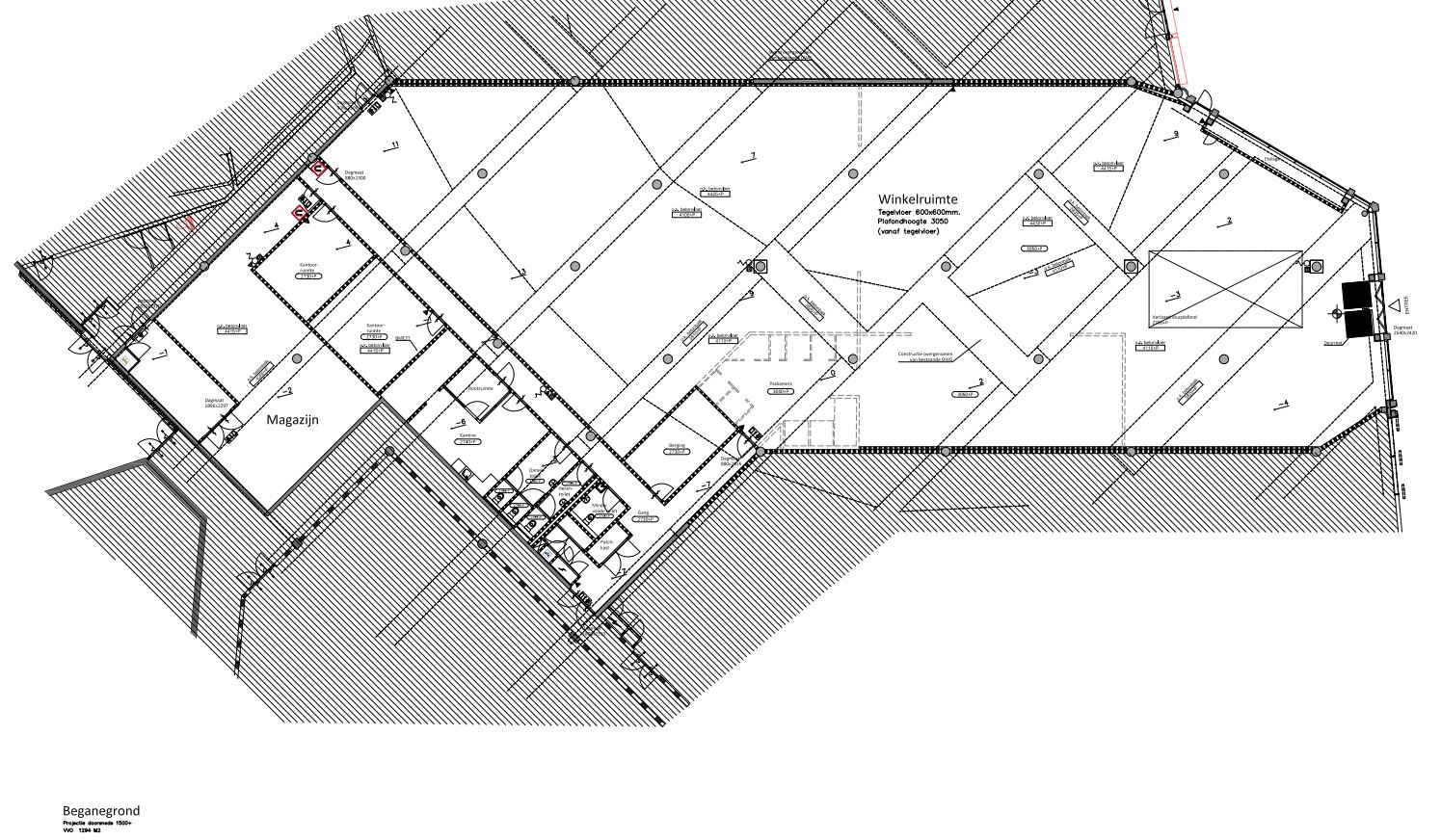
Een greep uit onze dagelijkse werkzaamheden
BIM projecten
Projectorganisatie
Uitvinderbuurt ede
Sportcomplex de Estafette Nieuw-Vennep
Theater Alphen aan den Rijn
Renovatie & Nieuwbouw Rozendaalcomplex Enschede
CAD projecten